“El projecte està ben lligat”, assenyala Vilà, “però tot és molt lent. Tenim aquesta mania en aquest país. Tot és massa lent. Costa fer els papers, arreglar-los, fer la burocràcia, passar per tots els departaments…”. “Però la cosa està ben encarada”, aclareix. En aquest sentit, Vilà recorda que “ja fa anys que treballem en això”. L’Institut Català del Sòl va adquirir els terrenys el 2006. Ens remuntem, doncs, vint anys enrere. “L’Incasòl els va comprar amb la idea ja de fer aquesta àrea empresarial i donar servei a la comarca.Va parlar amb els propietaris i es va arribar a un acord. Després, però, tot es va aturar a causa de la crisi econòmica del 2008. I havent passat la crisi, encara es va anar deixant la cosa durant uns anys més. No sé ben bé per quin motiu no es va acabar d’enfilar”, explica Vilà, que va assumir l’alcaldia d’Organyà el 2015, moment en què es va reiniciar el projecte, molt lentament: “Des que vaig entrar a l’ajuntament que he estat treballant en aquest tema”.

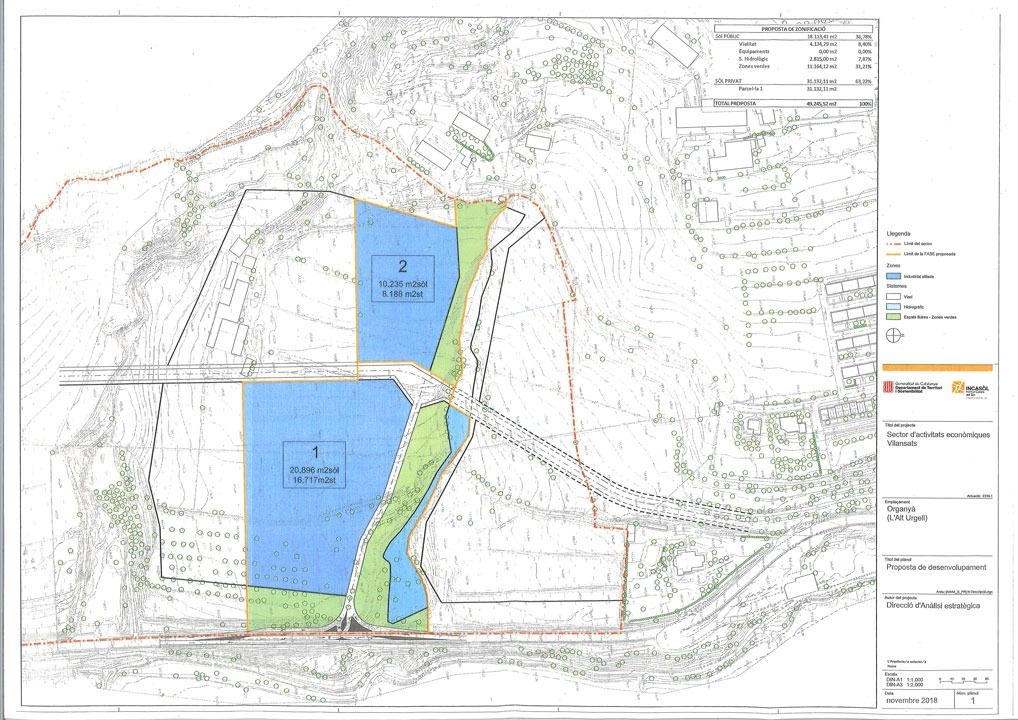
Ha costat habilitar els terrenys per poder-hi començar les obres: hi ha hagut problemes amb la llum (“faltava potència”) i no hi arribava l’aigua. El tema de la llum, però, “ja està resolt”. La represa d’aquest projecte de pol empresarial es va culminar amb la signatura d’un conveni el 2020. Una signatura que va implicar el departament de Territori de la Generalitat de Catalunya, l’Incasòl i l’Agència Catalana de l’Aigua (ACA). “Des de l’ajuntament ens vam comprometre a portar l’aigua fins allà i ara s’està construint la depuradora”, precisa l’alcalde. La millora en la potència de la llum i la possibilitat de disposar d’aigua han permès programar l’inici de les obres de la primera fase: “Ja hi ha licitada l’obra per fer l’entrada al polígon. Hi haurà una ‘illeta’ al mig per poder entrar i sortir”.
Recentment, amplia Vilà, el president de la Generalitat, Salvador Illa, va visitar Organyà aprofitant que pujava a Andorra: “Va voler parlar amb mi per saber com avançava el projecte, si ho vèiem tot bé, que no hi hagués problemes amb els veïns”. “Crec que el projecte és una bona cosa per al poble i per a la comarca”, manifesta Vilà, que desitja que “els andorrans en siguin partícips”.
“Ens permetrà créixer industrialment. Serà un espai disponible a qui vulgui muntar una nau, construir una fàbrica… Evidentment, el projecte implicarà que vingui gent a viure al poble. El cert és que els espais industrials de la Seu i Montferrer ja estan plens. Podem, doncs, aprofitar aquesta quantitat de terreny que tenim a Organyà”, comenta, finalment, Vilà, que recorda la cua que ja hi ha per radicar al municipi: “Ja hi ha una llista d’empreses que han demanat poder-s’hi instal·lar. Hi ha gent apuntada des del 2020; a l’espera que tot això es posi en marxa. Entre aquests demandants hi ha algun andorrà. De fet, volem que sigui un pol industrial transfronterer”.








Comentaris (9)