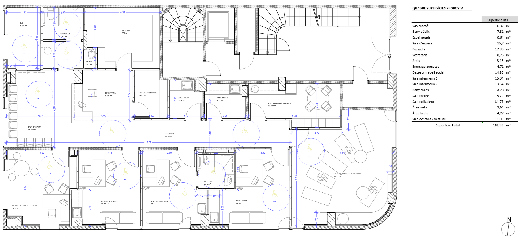
L'espai que s'ha de condicionar per ubicar les noves dependències del CAP està format per dos locals independents, i per tant, s'hauran d'unir per formar un únic espai, que es calcula que tindrà una superfície útil de 181,98 metres quadrats. El CAP comptarà només amb 3 façanes, i per aquest motiu, s'aposta perquè els espais estiguin distribuïts entorn aquestes per tal d'aprofitar al màxim la llum natural.
El projecte que va resultar guanyador va ser el de l'arquitecte Lluís Ginjaume Gratacós, i aquest dimecres, 5 de desembre, es tanca el període per presentar les propostes per tal de quedar-se amb l'adjudicació d'aquestes obres. El procés s'ha realitzat mitjançant un concurs nacional amb procediment obert i modalitat de la contractació ordinària.
Les sales per als pacients
Pel que fa a la distribució de les instal·lacions, s'han regulat amb el programa establert pel Servei Andorrà d'Atenció Sanitària (SAAS). El nou centre disposarà de dues sales d'infermeria, una sala assistencial polivalent, una sala de visita del metge de capçalera i un despatx. En aquest cas, aquestes sales s'obriran cap a la façana sud i disposaran d'uns grans finestrals per tal d'assegurar que hi hagi una bona il·luminació i ventilació.
Les dues estances d'infermeria seran adequades per a realitzar exploracions i cures, i estaran equipades amb una aigüera i mobiliari d'emmagatzematge. La sala polivalent, que ocuparà el xamfrà sud-est del local, serà l'únic espai que comptarà amb emmagatzematge de material per activitats d'educació per la salut. Mentre que, el despatx de treball que tot sembla indica que l'ocuparà un educador social serà l'únic que no requerirà un espai per a realitzar exploracions.
A la part posterior, sense contacte amb les façanes, i per tant, sense il·luminació de l'exterior, hi seran ubicades les àrees bruta i neta i l'espai destinat al descans i vestuari de tots els treballadors del Centre d'Atenció Primària. Aquesta estança disposarà d'un 'office' i de taquilles.
Cal recordar que l'actual CAP de Santa Coloma, situat al Carrer Major del centre històric de la localitat, atén uns 2.000 usuaris i per tant, amb la construcció d'aquest nou centre es vol donar més espai i accessibilitat als pacients. A més, el seu exterior disposa de força lloc per aparcar. L'establiment té un cost de lloguer de 2.000 euros mensuals pel Comú d'Andorra la Vella, els quals ja es paguen des del passat mes de setembre.







Comentaris (1)